logo

2025.10.05., vasárnap · 

Aurél

  • Sopron Tómalomnál magánszemélytől eladó két, szomszédos idilli telek

    • Eladó ingatlanok

    • Győr-Moson-Sopron megye / Sopron

    • egyéb

    • 1.64 ha

    • 20

    • 12.20

    • 1/1

    • 365.000.000 Ft

    • 222.560.976 Ft / ha

    • 18.250.000 Ft / AK

    • 2020.09.18.

Leírás

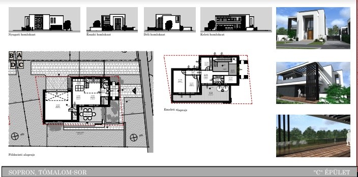
Sopron Tómalomnál magánszemélytől eladó kettő, teher-, és permentes, idilli környezetű szomszédos telek (előkészített lakópark projekttel).
A telkek és a környezet szálloda/lakópark építésére is alkalmasak.
A telkek méretei:
9.390m2 és 5.645m2, közöttük 1.448m2 kivett úttal
Összesen 16.483m2
Belterület - "Kivett beépítetlen terület"

  A hirdető további hirdetései

  Hasonló hirdetések